|
 |
DIY: Control Box for the MTI Auto-Orchestra
(added Jan 25, 2009) (nnn reads)
Fun with an early 1980s band-in-a-box
The MTI Auto-Orchestra was designed as an accompaniment device. It's got a drum machine, a bass section, a strings section and a syncopated chord section.
The drum machine will pretty much work on its own without external control. One handy feature is a set of mute buttons for *every* instrument in the drum section.
The remaining sections need to have some input so that they know what key to play in. I think this was usually a 13 note pedal board. I didn't really want to sacrifice
a pedal board for this 'experiment' so I chopped up an old unused Pratt-Read keyboard instead, as you can see below. The bass section pretty much
delivers either a walking bass or just the root note (with an extra feature that you can play bass 'manually' if you'd like) in one of two voices, the strings section
delivers sustained chords on an analogue-string-machine-like voice, with a nice ensemble using a triple BBD effect built onto one of the boards. There's also a
function that will hold whatever note or group of notes the strings are playing even if you select a different key. If you select, or de-select the strings from the buttons
that determine which sections are sounding, the strings don't just cut-in and cut-out, rather they fade in or out - a very nice touch. The chords section is a garden variety syncopated
voice, that, well, doesn't sound like any particular instrument, but has a percussive character. The chords section can also be set in 'drone' to play continuously.
It's an interesting relic of its time. I remember visiting a friend in the mid-80s, he had one of these, with pedal board and swell pedal, sitting by his piano. At the time,
I was blown away by what he could do with it.
The MTI Auto-Orchestra itself. There are connectors on the side for hooking up a couple of accessories including:
a swell pedal with chord-type selector levers and a 13 note pedalboard for selecting what key the 'orchestra' plays in.
First step, make a test assembly. Base panel was sawed from an old wardrobe that's been disassembled. Recycle, recycle, recycle...!
The quickly whacked together control chassis
Rocker tablets from an old Yamaha organ are used to select chord type (major is the default, these switch to minor, diminished and seventh).
The big button mounts in a machined stainless steel recess (with "START" engraved at the top) from a 1950s RCA tape machine, the keyboard
is the top 13 notes removed from an old 61 note surplus Pratt-Read keyboard
First try-out. Everything works, although the contacts on the Cinch-Jones connectors need a bit of cleaning. Side note: Cinch-Jones connectors
seem to be getting harder to find. Jameco was able to supply me with the 15 pin one, but a quick survey of on-line sources didn't turn up the 8 pin
version. I ended up removing some pins from a 10 pin connector I had lying around.
Well, why not make a whole case for it, right?!?
Unfinished case "glamor shot" If you can call something like this glamorous. Hmmm.
Since I'd gone to this much trouble, I figured it'd be easy enough to stain and finish the cabinet as well.
All done and ready to go. "Boom - tsssshhht - blat blat blat - Boom - tsssshhht..." :-)
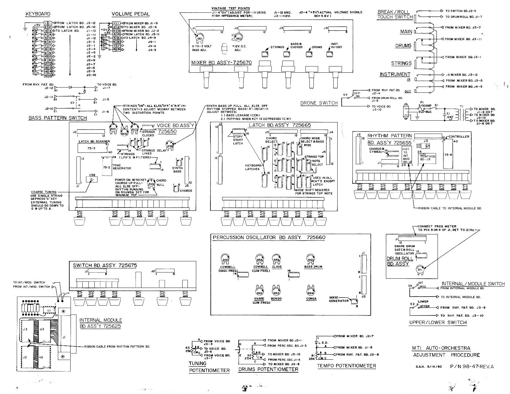
Abbreviated map of the internal chip layout and some internal connectors, adjustment procedure, and also including hook-up details for the key select and swell pedal connections.
I don't have a 'real' schematic, sorry. linked image is about 307K or so
Probably more effort than most people would devote to something like this, but it was fun to make this out of spare parts lying around (including the wood)
|
[ Back to 04. Synthesizers & Sound Generators | Main Index ]
|
|
| |